Продажа квартиры в новостройке, Татарская Б. ул., 35, Москва
- Регион
- Москва
| Адрес | Татарская Б. ул., 35Объект на карте |
- Метро
- Новокузнецкая
- Тип дома
- Кирпично-монолитный
- Этаж
- 4 этаж в 24-этажном доме
- Кол-во комнат
- 3
- Общая площадь
- 119.50 м2
- Жилая площадь
- 83.20 м2
- Площадь кухни
- 36.30 м2
- Дата обновления
- 17.04.2026
- Дата размещения
- 08.03.2026
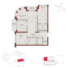
Продается 3-комн. квартира с европланировкой, площадью 119.5 м2 в монолитно-кирпичной новостройке в 10 мин. пешком от м. Новокузнецкая, район города - Замоскворечье. Возможен вариант покупки с использованием ипотечных средств, есть рассрочка, возможна покупка с использованием материнского капитала, есть военная ипотека.
Жилая площадь 83 м2, кухня 36 м2, квартира без отделки, комнаты изолированные, совмещенных санузлов - 1, балконов - 1.
Квартира располагается на 4 этаже 24-этажного дома в ЖК Татарская 35.
Застройщик - ДОНСТРОЙ, сдача дома - I квартал 2028 года, высота потолков 3 м, есть мусоропровод, закрытая территория.
Подземная парковка, парковка охраняется. Обеспечение безопасности: видеонаблюдение, круглосуточная охрана, консьерж, противопожарная система, пропускная система. Инфраструктура: школа, детский сад, поликлиника, спортивные площадки, места для отдыха, рестораны, фитнес-центр, пункты бытового обслуживания.
ТАТАРСКАЯ 35 - новая архитектурная доминанта Замоскворечья, новая достопримечательность на фотопанорамах исторического центра Москвы. Элитный дом с панорамными видами на Кремль и другие знаковые места столицы. В доме более 1000 м2 общественных пространств: от фитнеса и детской до бьюти-рума и переговорной. У дома - закрытый двор-сад в стиле итальянского романтизма и собственный велнес-центр с бассейном.
Жилой комплекс представляет собой современное здание с монолитными кирпичными стенами. В проекте два подъезда и максимальная этажность в 26 этажей. Минимальная этажность - 18 этажей. Комплекс отличается высоким классом энергоэффективности - A++.
Жилой проект расположен в районе Замоскворечье города Москвы. В пешей доступности находятся станции метро: Новокузнецкая (10 минут) , Павелецкая (11 минут) и Третьяковская (12 минут) . Отличная транспортная доступность позволяет быстро добраться в любую точку города.
Позвоните и узнайте условия покупки прямо сейчас!
Жилая площадь 83 м2, кухня 36 м2, квартира без отделки, комнаты изолированные, совмещенных санузлов - 1, балконов - 1.
Квартира располагается на 4 этаже 24-этажного дома в ЖК Татарская 35.
Застройщик - ДОНСТРОЙ, сдача дома - I квартал 2028 года, высота потолков 3 м, есть мусоропровод, закрытая территория.
Подземная парковка, парковка охраняется. Обеспечение безопасности: видеонаблюдение, круглосуточная охрана, консьерж, противопожарная система, пропускная система. Инфраструктура: школа, детский сад, поликлиника, спортивные площадки, места для отдыха, рестораны, фитнес-центр, пункты бытового обслуживания.
ТАТАРСКАЯ 35 - новая архитектурная доминанта Замоскворечья, новая достопримечательность на фотопанорамах исторического центра Москвы. Элитный дом с панорамными видами на Кремль и другие знаковые места столицы. В доме более 1000 м2 общественных пространств: от фитнеса и детской до бьюти-рума и переговорной. У дома - закрытый двор-сад в стиле итальянского романтизма и собственный велнес-центр с бассейном.
Жилой комплекс представляет собой современное здание с монолитными кирпичными стенами. В проекте два подъезда и максимальная этажность в 26 этажей. Минимальная этажность - 18 этажей. Комплекс отличается высоким классом энергоэффективности - A++.
Жилой проект расположен в районе Замоскворечье города Москвы. В пешей доступности находятся станции метро: Новокузнецкая (10 минут) , Павелецкая (11 минут) и Третьяковская (12 минут) . Отличная транспортная доступность позволяет быстро добраться в любую точку города.
Позвоните и узнайте условия покупки прямо сейчас!


























