Продажа 2-комнатной квартиры, Вильгельма Пика ул., 1, Москва
- Регион
- Москва
| Адрес | Вильгельма Пика ул., 1Объект на карте |
- Метро
- ВДНХ
- Этаж
- 20 этаж в 47-этажном доме
- Кол-во комнат
- 2
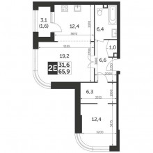
- Общая площадь
- 65.90 м2
- Жилая площадь
- 31.60 м2
- Площадь кухни
- 12.40 м2
- Дата обновления
- 28.04.2026
- Дата размещения
- 21.02.2026
Продается 2-комн. квартира, площадью 65.9 м2.
Жилая площадь 31.6 м2, кухня 12.4 кв. м, ремонта нет, окна выходят на улицу.
Квартира располагается на 20 этаже 47-этажного монолитного дома.
Дом оборудован пассажирским лифтом, есть мусоропровод, закрытая территория, парковка охраняется.
Жилая площадь 31.6 м2, кухня 12.4 кв. м, ремонта нет, окна выходят на улицу.
Квартира располагается на 20 этаже 47-этажного монолитного дома.
Дом оборудован пассажирским лифтом, есть мусоропровод, закрытая территория, парковка охраняется.


























